动迁动迁动迁河南南路要拆的房子一楼附送面积多周边配套完善急卖

分享

微信扫一扫分享好友
更多分享>

收藏

下载房天下APP
楼盘动态及时知

优选房源

甄选全网清洗聚合可比价
立即预约预约看房,方便带看,经纪人1对1带看服务
房源信息 查看来源
建筑年代1999年
有无电梯
供暖方式自供暖
户型结构平层
产权性质个人产权
看房时间随时看房
房源编号425545533
挂牌时间2025-10-10
  • 核心卖点
    中居锦明刘文昌:本人实地拍摄,确保房源真实、有效,房东诚意出售,看房随时,价格可谈! 采光: 采光不挡,小区前排,小区绿化规划好。
  • 业主心态
    【业主情况】:产权2个人,上海本地人,签约随时。
    【房源情况】:无贷款,2个户.口。房子清清爽爽。
  • 税费分析
  • 小区配套
    【轨道交通】:豫园地铁1.10.2号线,老西门地铁8.10号线.9号线小南门
    【出门配套】日月光,田子坊,新邻生活广场,世博滨江,老西门、城隍庙,南京步行街 【配套】荷花池幼.儿.园,爱童幼.儿.园,思南幼.儿.园, 【医疗配套】上海市第九人民(三级甲等)、瑞金卢湾分院(二级甲等),田子坊医.院 【商业配套】上海银行,建设银行,邮政银行,平安银行,中国银行、工商银行;香港龙凤楼、凯德晶萃地下商业广场,汇景生活广场,联华超市,静安面包坊,蔡先生传统小吃,赛百味,智造局创业园等
  • 服务介绍
    本人刘文昌2015年正式在上海从事行业今。精通行业的所有专业流程和客户需求的房源配比!主营上海以及上海周边的一手房和上海中高端二手房操作业务。我的宗旨:想您所想!排您所优!归锦明房地产
房源特色
简装修低层电梯有暖气板楼户型通透南北通透通风好配套成熟首付低性价比高总价低七十年产权近地铁
房源故事
房源图片
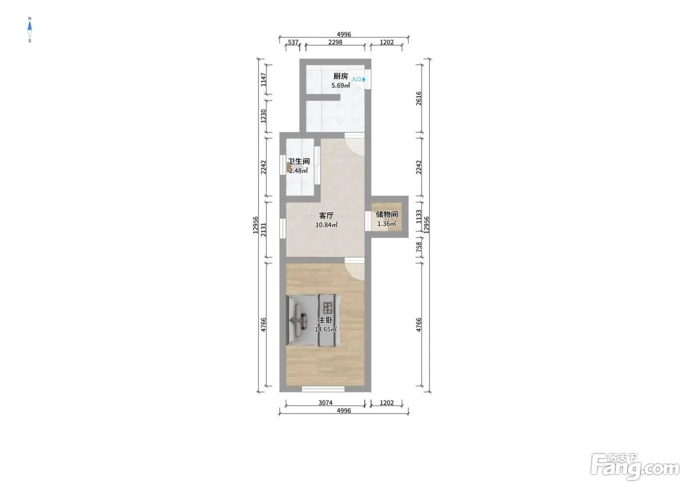
户型图
户型图
室内
室内
室内
室内
室内
室内
室内
室内
室内
室内
室内
室内
室内
室内
室内
室内
室内
室内
实景图
实景图
实景图
实景图
实景图
实景图
400
首付预算约99.8万
满五配套成熟首付低性价比高总价低

一键咨询最低报价、首付及税费等优惠!

询底价

1室1厅1卫
户型
39.95平米
建筑面积
100125元/平米
单价
南北
朝向
楼层(共6层)
简装修
装修
小      区
河南南路790弄小区(距9号线小南门站约712米)
区      域
上海锦明房地产经纪有限公司
18402120075房聊
河南南路790弄小区小区信息
物业类型 住宅
物业费用0.88元/㎡·月
建筑类型板楼
建筑年代2000年
绿 化 率20%
容 积 率2
人车分流
总楼栋数1
总 户 数144

新上房源优先通知

当前选择:河南南路790弄小区100125元/平米订阅
小区图片
周边配套
免责声明:房源信息由网站用户提供,其真实性、合法性由信息提供者负责,最终以政府部门登记备案为准。本网站不声明或保证内容之正确性和可靠性,购买该房屋时,请谨慎核查。入学情况仅凭历史经验总结,在此不承诺升学事宜。请您在签订合同之前,切勿支付任何形式的费用,以免上当受骗。
推荐经纪人(共1名)
上海锦明房地产经纪有限公司
18402120075房聊