新上满五年93年房龄一梯三户中山學校送5平方地铁13.4号线

分享

微信扫一扫分享好友
更多分享>

收藏

下载房天下APP
楼盘动态及时知

优选房源

甄选全网清洗聚合可比价
立即预约预约看房,方便带看,经纪人1对1带看服务
房源信息 查看来源
建筑年代1993年
供暖方式自供暖
产权性质商品房
看房时间随时看房
房源编号420490519
挂牌时间2025-10-10
  • 核心卖点
    一、房源介绍:1.【小区介绍】:百溪位于瞿溪路局门路路口,93年的房龄,小区!2.【实地观感】:一梯三户,南北通透,精装修两居室,全明户型采光视野都棒!3.【税费】:满五售后公房!二、交通出行1.【周边公交】:45、111、318、327、780、869等多条公交线路!2.【周边地.铁】:13号线世博会博物馆地铁,4号线鲁班路地铁,出行都十分的便利!三、周边配套:1.【医院】:上海三甲医院第九人民医院!2.【商场】:汇暻生活广场、博荟广场;江南菜场、新瞿溪路菜市场!配套给您舒适的生活体验!
  • 业主心态
    1 ,诚心售房房主资金紧张,急需过户,价格面议。
    2,微笑迎客:待人真诚,宾客如归,和蔼可亲,人心善,细心讲解:房屋具体情况如实告知,带你熟悉周边环境
    3,价格可谈:意向为准,价格立定,出手直接 4,友谊长存:知己知彼,共存友谊,方可后遇
  • 税费分析
    产权干净,税费清晰,欢迎来电咨询该房屋详情,静候您的来电!
  • 小区配套
    小区地理位置好,配套设施齐全,交通便利,居民素质高。
  • 服务介绍
    本着诚信的理念,我珍视每一份嘱托,不发布虚假房源、不虚报价格,一心一意只为圆您家的梦想!对房产方面专业知识,都很深刻了解;选择一个正规的品牌地产公司能让您安全交易;选择一个诚信专业高效的物业顾问购房
房源特色
精装修低层有暖气板楼户型通透南北通透通风好七十年产权近地铁
房源故事
房源图片
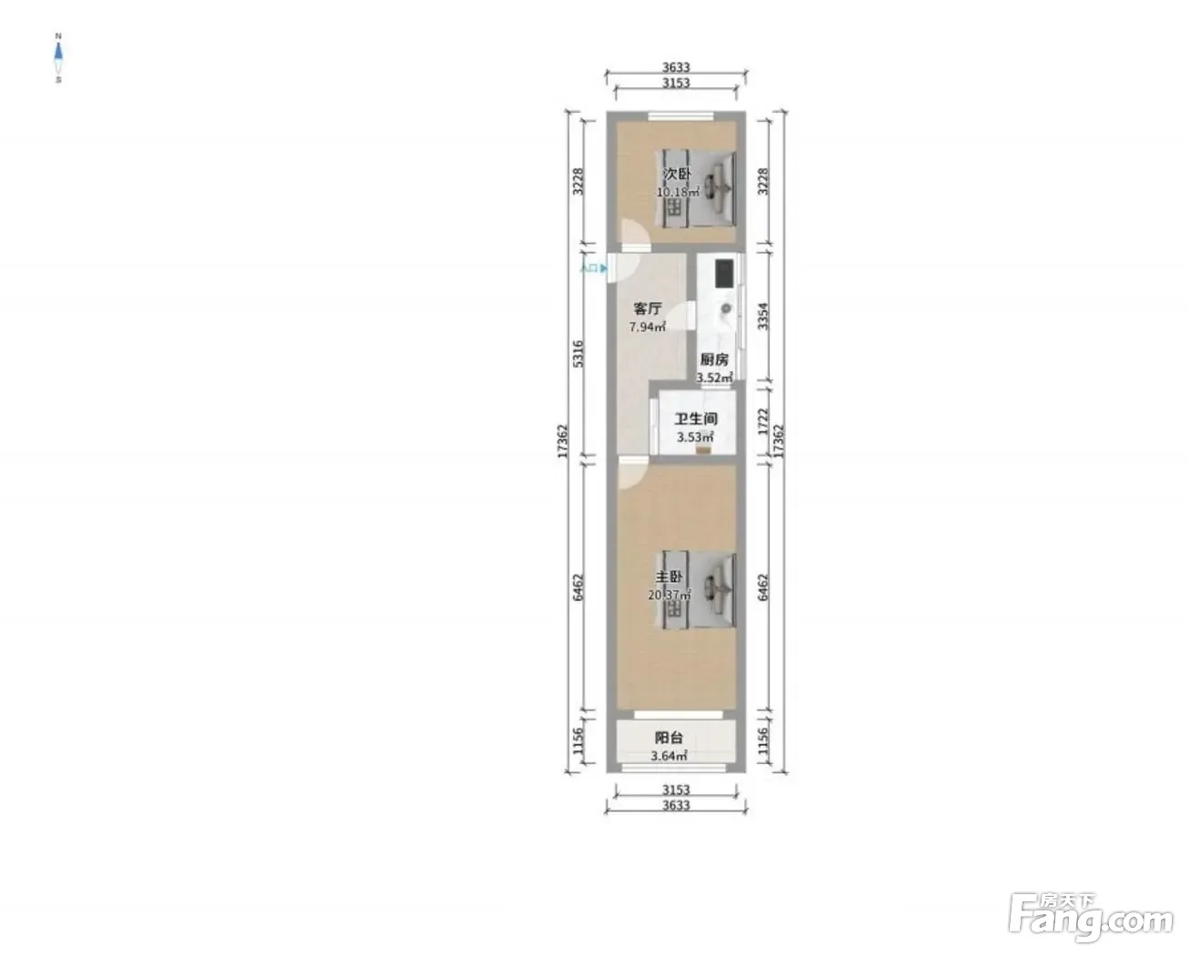
户型图
户型图
室内
室内
室内
室内
室内
室内
室内
室内
室内
室内
室内
室内
室内
室内
室内
室内
室内
室内
室内
室内
实景图
实景图
实景图
实景图
实景图
实景图
实景图
实景图
实景图
实景图
实景图
实景图
400
首付预算约99.8万
满五

一键咨询最低报价、首付及税费等优惠!

询底价

2室1厅1卫
户型
50.54平米
建筑面积
79145元/平米
单价
南北
朝向
楼层(共7层)
精装修
装修
小      区
百溪公寓(距13号线世博会博物馆站约422米)
区      域
上海锦明房地产经纪有限公司
18402120075房聊
闪电回复
百溪公寓小区信息
物业类型 住宅
物业费用0.42元/㎡·月
建筑类型板楼
建筑年代1994年
绿 化 率42%
容 积 率1.6
人车分流
总楼栋数3
总 户 数246

新上房源优先通知

当前选择:百溪公寓83039元/平米订阅
小区图片
周边配套
免责声明:房源信息由网站用户提供,其真实性、合法性由信息提供者负责,最终以政府部门登记备案为准。本网站不声明或保证内容之正确性和可靠性,购买该房屋时,请谨慎核查。入学情况仅凭历史经验总结,在此不承诺升学事宜。请您在签订合同之前,切勿支付任何形式的费用,以免上当受骗。
推荐经纪人(共1名)
上海锦明房地产经纪有限公司
18402120075房聊
闪电回复